Publicación #04 Planos de una casa de 7,5m x 10m.


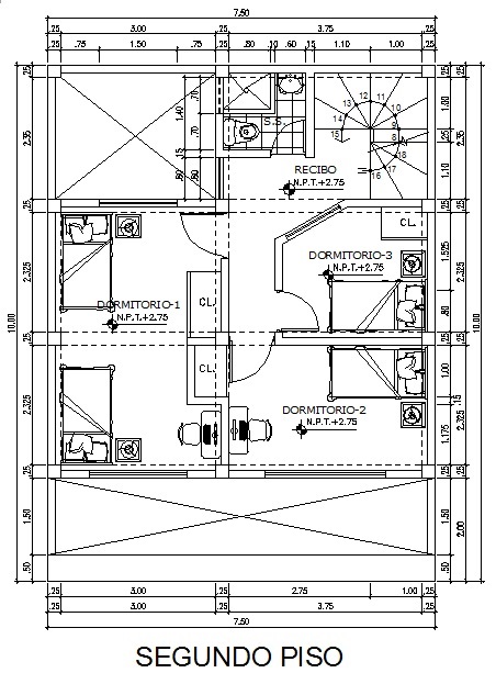
Hola a todos. En esta ocasión les comparto los planos de una casa de 7,5m. x 10m. De 2 pisos+azotea. Área=75m².

Tiene un estacionamiento, la sala-comedor, la cocina, el S.S., el patio, un pequeño jardín y el depósito abajo de la escalera.

Hay 1 dormitorio grande, 2 dormitorios, el servicio sanitario (S.S.), el recibo y la escalera.

En la azotea se puede ver; la lavandería, el S.S. el tendal, el recibo y la escalera.
¡Eso es todo por hoy, gracias!