Wymarzony dom #6 Projektowanie instalacji elektrycznej

in #polish7 years ago (edited)

IMG_20181014_155448_HDR.jpg

W dzisiejszym wpisie opowiem Wam trochę na temat procesu projektowania instalacji elektrycznej. Na samym początku jednak wspomnę dlaczego w ogóle warto się za to zabrać samemu jeśli nawet nie ma się zielonego pojęcia na ten temat. Serdecznie zapraszam.

"Aby móc projektować instalacje elektryczną musisz mieć do tego uprawnienia opisane w.... ZAMYKAM TEMAT!"

Uwielbiam frustratów z elektrody. Jeśli ktoś z Was chociaż raz zaglądnął na to forum wie, że stwierdzenie przez mnie zamieszczone w tytule tego podrozdziału nie różni się wiele od większości komentarzy "wybitnych" elektryków klepiących tam posty. Ktoś chce się skonsultować i dostaję właśnie taką odpowiedź od fachowcy z wielkim doświadczeniem :)

Czy moim zdaniem tamtejsi frustraci mają rację? Czy faktycznie osoba bez 5 letnich studiów i 3 lat doświadczenia nie jest w stanie zaprojektować instalacji dla swojego domu? Oczywiście jest to bzdura! I sami zobaczycie, że jest to możliwe a co ważne jest to stosunkowo proste. Oczywiście projekt taki, według przepisów nie będzie miał "mocy urzędowej" ale podpis projektanta, który sam zrobiłby to pewnie gorzej, już nagle Waszą amatorską prace uczyni w pełni legalną.

Pytanie jednak może nasunąć się takie. Skoro i tak będzie musiał podpisać się pod tym ktoś z uprawnieniami, to czy w ogóle jest sens wkładać w to wysiłek? Nie lepiej zapłacić i mieć to z głowy? Oczywiście, że nie! Dom, w którym będzie zrobiona ta instalacja to Wasz przyszły dom. Dlatego im wcześniej (na etapie projektowania) dostosujecie ją do siebie tym taniej będzie to wykonane.

Kolejna sprawa to fakt, że większość projektantów klepiących te projekty, to raczej kreślarze niż prawdziwi projektanci. Wszystkie instalacje przez nich planowane są robione na jedno kopyto, bez porządnego przemyślenia tematu.

Jako elektryk nie-projektant spotkałem już wielu kolegów z branży tworzących te schematy, więc niestety wiem o czym mówię. Niejednokrotnie sam musiałem przemyśleć całą instalację i dać ją "na tacy" "fachowcy z uprawnieniami". W przeciwnym razie poprawek, a przez to zmarnowanego czasu było za dużo.
Po przydługim wstępie czas zabrać się do roboty!

Podział obwodów

Mając plan domu, na samym początku należy rozplanować ilość obwodów elektrycznych jakie będziemy chcieli użytkować. Na chwilę obecną fizyczne ich rozmieszczenie nie jest tak pilne jak ich ilość i przeznaczenie.
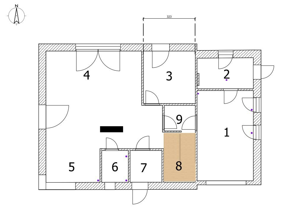
Poniżej rzut parteru z ponumerowanymi pomieszczeniami. Jako, że planuję na poddaszu wykonać drugą rozdzielnicę, skupie się aktualnie tylko na tej kondygnacji.
numery.png

Zanim jednak weźmiemy się za rozmieszczanie poszczególnych obwodów, kilka informacji na temat ich grupowań. Konieczne jest wyszczególnienie kilku rodzajów obwodów, które muszą być zabezpieczone oddzielnymi bezpiecznikami.

  • obwody oświetlenia
  • obwody urządzeń trójfazowych
  • obwody urządzeń o mocy powyżej 3kW
  • obwody gniazdek w pomieszczeniach mokrych
  • obwody poza budynkiem (brama, oświetlenie podjazdu)
  • obwody w pomieszczeniach bytowych

Lista jak widać jest spora. Do tego dodać należy, że na jednym bezpieczniku może być maksymalnie 10 gniazdek jednofazowych.

Dobrym zwyczajem jest oczywiście rozbić instalację na możliwie jak najwięcej obwodów. Jednak ze względu na koszty trzeba znaleźć jakiś kompromis.

Dlaczego warto tworzyć więcej obwodów? Prosty przykład. Załóżmy, że jesteśmy w starym domu, gdzie instalacja nie była modernizowana od bardzo dawna. Wszystkie obwody wiszą na jednym bezpieczniku. Następuje zwarcie w jednym z urządzeń, bezpiecznik się przepala. Momentalnie gaśnie wszystko i robi się ciemno. Dotarcie do skrzynki bezpiecznikowej i wymiana spalonej wkładki to spore wyzwanie.

Jeśli natomiast zadziałałby bezpiecznik tylko w jednym obwodzie nie gaśnie nam światło, nie wyłącza się lodówka czy komputer, na którym któryś z domowników akurat pracuje.

W moim przypadku dodatkowo musiałem uwzględnić rozmiar skrzynki rozdzielczej. Ze względu na to, że dom już ma przyłącz nie chciałem wyrzucać pieniędzy w błoto tylko po to by kupić rozdzielnicę, w której mieści się więcej aparatów.

numery obw.png

Mając tak przygotowane zestawienie możemy zacząć liczyć to jakich aparatów będziemy potrzebować. Dalszy ich dobór a także krótki opis co do czego w następnym wpisie z tej serii.
Pozdrawiam!


Sponsored ( Powered by dclick )

dclick-imagead

Sort:  

Congratulations @reinmar! You have completed the following achievement on the Steem blockchain and have been rewarded with new badge(s) :

You published more than 80 posts. Your next target is to reach 90 posts.

Click here to view your Board
If you no longer want to receive notifications, reply to this comment with the word STOP

To support your work, I also upvoted your post!

Support SteemitBoard's project! Vote for its witness and get one more award!

Congratulations @reinmar! You received a personal award!

Happy Birthday! - You are on the Steem blockchain for 1 year!

Click here to view your Board

Support SteemitBoard's project! Vote for its witness and get one more award!